Чиланзар | Учтепа-24 | Фархадский Базар

Регион:
Учтепинский район
Адрес:
Улица Лутфий, Lutfiy ko'chasi, Баяут, Узбекистан
Общая площадь:
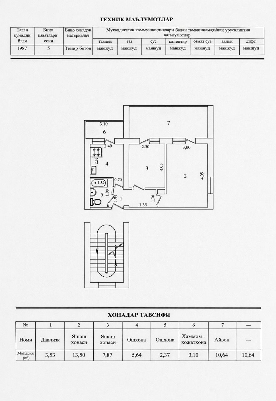
47 m2
Количество комнат:
2
Этаж:
3
Всего этажей в доме:
5
Тип строения:
вторичка
Материал:
кирпичный
Дата строительства дома:
1987
Местоположение объекта:
внутри квартала
Состояние:
требует капитального ремонта
Санузел:
совмещенный
Высота потолков:
2.60 м
Телефон:
+998977190279
Автор объявления:
риэлторское агентство
Цена:
54000 у.е.
Подробности:
СРОЧНО | ПРОДАЁТСЯ ДВУХ КОМНАТНАЯ КВАРТИРА Район: УЧТЕПА-24 Ориентир: КАФЕ МОСКВА   Характеристики квартиры: • Количество комнат: 2 • Перепланирована в студию • Этаж: 3 • Этажность дома: 5 • Два балкон: 1.90х5.60 и 1х3.10 • Общая площадь: 47м² • Материал дома: кирпичный • Состояние квартиры: БЕЗ РЕМОНТА • Квартира торцевая Цена: 648 000 000 сўм ≈ 54 000 Преимущества: Удобное расположение: рядом школа №78, Детский сад №387, 356, Фархадский базар, магазины,аптеки, кафешки и т.д. Отличная транспортная развязка. Звоните по указанным номерам:+998(97)719-02-79  --- SHOSHILINCH | SOTILADI  IKKI XONALI KVARTIRA Hudud: UCHTEPA-24 Mo‘ljal: MOSKVA KAFESI   Kvartira tavsifi: • Xonalar soni: 2 • Studiyaga qayta rejalashtirilgan • Qavat: 3 • Uy qavatlari soni: 5 • Ikki balkon: 1.90×5.60 va 1×3.10 • Umumiy maydoni: 47m² • Uy materiali: g‘isht • Kvartira holati: TA’MIRSIZ • Kvartira burchakda joylashgan Narxi: 648 000 000 so‘m ≈ 54 000 Afzalliklar: Qulay joylashuv yaqinida 78-maktab, 387 va 356-sonli bolalar bog‘chalari, Farhod bozori, do‘konlar, dorixonalar, kafelar va boshqalar. A’lo transport qatnovi. Qo‘ng‘iroq qiling: +998(97)719-02-79
Фотографии:
Партнеры